Slopeside
Bio
Process
3D&VR
Fees
+
⌂Home
Back
Tuhaye Custom
Park City Retreat
Cougar Moon Custom
Taos Canyon Expansion
Dancing Sun Custom
Steamboat River Ranch
Back
Recognition
Projects Map
Previous Works
Clubhouses
Slopeside
Tuhaye Custom
Park City Retreat
Cougar Moon Custom
Taos Canyon Expansion
Dancing Sun Custom
Steamboat River Ranch
Bio
Process
3D&VR
Fees
+
Recognition
Projects Map
Previous Works
Clubhouses
GDArch >< Architecture
⌂Home
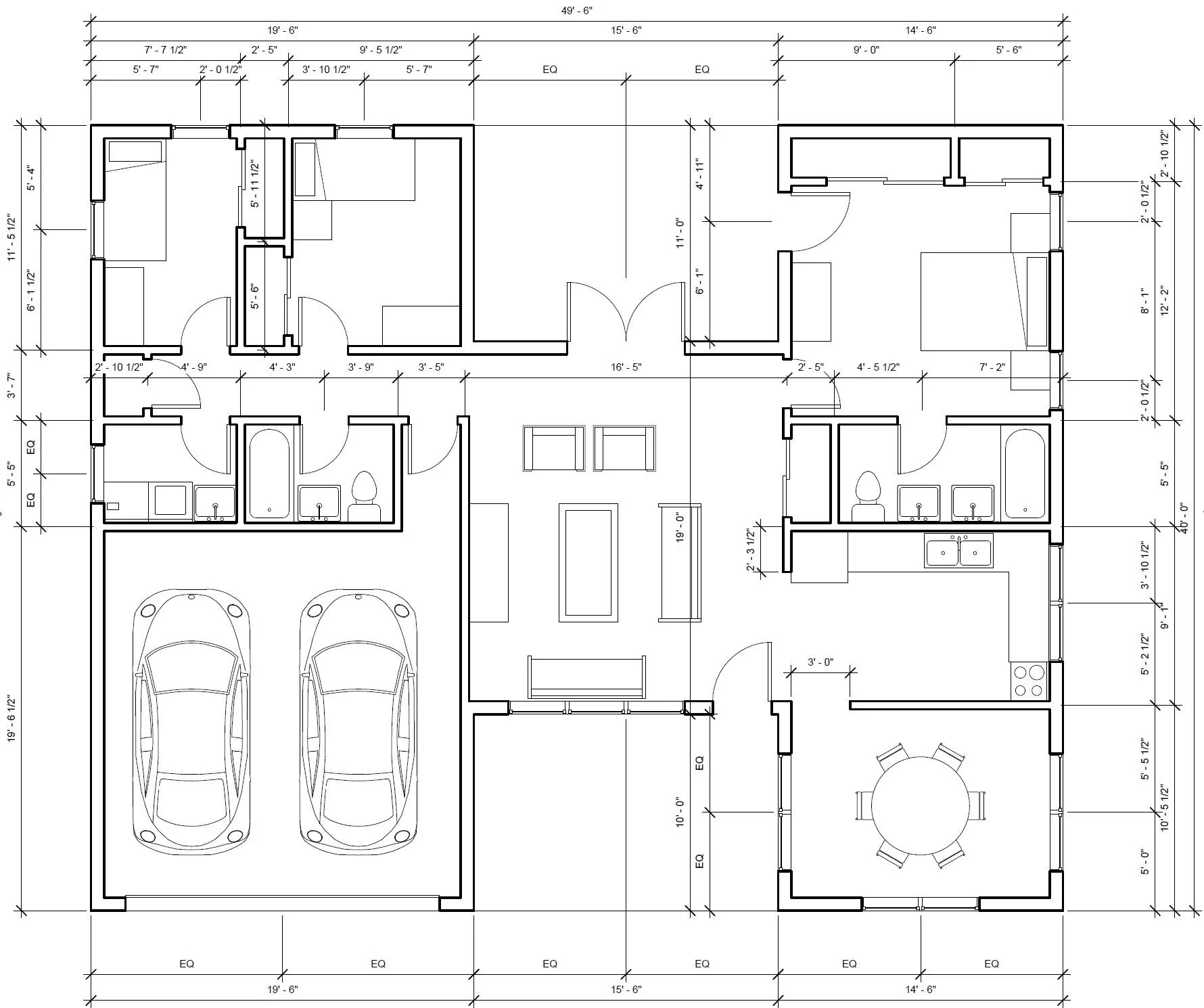
Joshua Tree H Home
Joshua Tree, California - 2004 (Unbuilt)